すべての家族に、
心からの「ただいま」を。
Blog
プロジェクトの報告
-
-
2026年1月29日
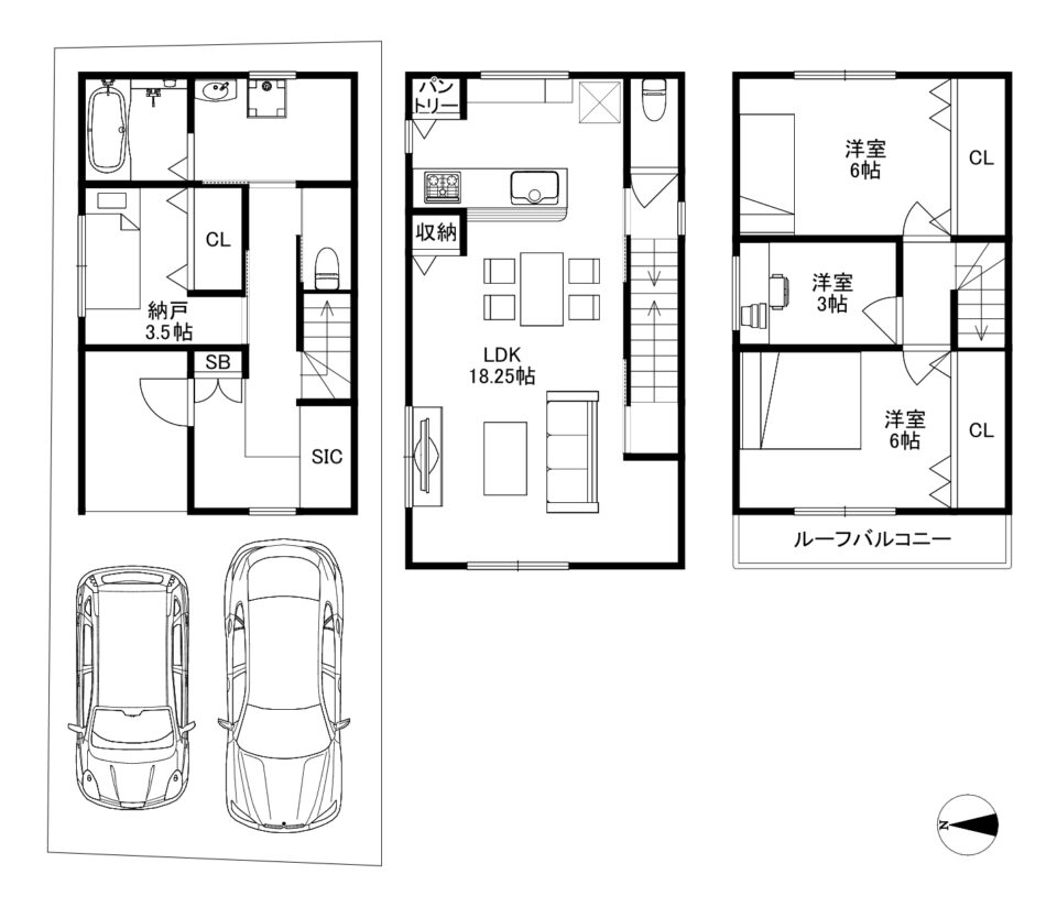
東大阪市寺前町 施工事例
平素よりホームページをご覧いただき
誠にありがとうございます。
本日は東大阪市寺前町の
新築施工事例をご紹介いたします。
・最寄り駅が近く毎日の生活に便利な立地。

・豪華仕様設備を多数採用しております。

・広い浴室はお子様との入浴時でもゆとりがございます。

・下がり天井がおしゃれなキッチンスペース。
広々パントリーや対面式、食洗機などが魅力的!!
・WICがある洋室は子供部屋に最適。(写真:トイレ)

・収納豊富な4LDKでファミリーにうれしい間取り。(写真:洗面脱衣室)

・間口が広い分譲地です。

・広々玄関ポーチには自転車など様々なものが置けます。

・慌ただしい時間でもゆとりある洗面脱衣室。

・収納豊富な3SLDKできれいが保てます!!

・小さめのお部屋は書斎などとして大活躍。

・車2台分駐車可能で来客時も安心。(写真:バルコニー)

