すべての家族に、
心からの「ただいま」を。
Blog
プロジェクトの報告
-
-
2026年2月26日
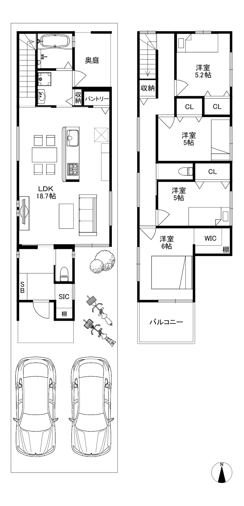
東大阪市昭和町 施工事例
平素よりホームページをご覧いただき
誠にありがとうございます。
本日は東大阪市昭和町の
新築施工事例をご紹介いたします。
・奥庭が魅力的な動線スムーズな2階建。
2台分カースペースもうれしいポイント。
・開放感たっぷりの広々LDK!!
パントリーやペニンシュラキッチンなどの豪華仕様。
・浴室乾燥機付きの清潔感溢れる浴室。

・豊富な収納できれいな状態が保てます。

・各階にトイレあり。感染症対策時などに便利です。

・ゆとりある4LDKでの新生活。

・全居室に収納あり。すっきりとお使いいただけます!!

・陽当たり通風良好な南側バルコニー。






